| 照明器具の効果も大きいです |
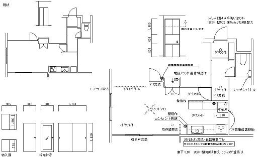
![]() LDKのリフォームの際、照明器具のリニューアルを提案させていただきました。 LDKの天井には四角いシーリングライト、丸いペンダントライトが 付いていたのですが、キッチンと収納の配置をリフォームで変えるプランでは 納まりが良くなく、ダウンライトとシーリングファンへの変更をプランしました。 LEDのダウンライトを6灯配置、中央にはシーリングファン、絵画を掛ける予定の 壁面の天井にはラィティングレールを設置しました。 リフォーム前と後の画像を比べてみました。 ![]() ![]() システムキッチンはクリナップのSSシリーズ。レンジフードは、ボタンひとつで 内部をクリーニングしてくれる「洗え〜るレンジフード」 大容量で使いやすい収納システムには、電子レンジなどの家電もすっきり 納まりました。 プランです↓ ![]() ![]() |
〒235-0045
横浜市磯子区洋光台1-13-38
TEL.045-834-3030
FAX.045-834-3677
営業時間 9時〜18時
定休日 日・祭日
→アクセス

