| 小窓を新設したLDK |
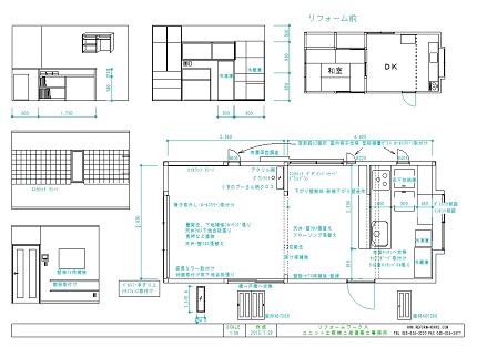
![]() ![]() 小窓は、視線を遮りながらも部屋に光と風を取り込んでくれます。 今回は、和室とDKを繋げ広いLDKにするリフォームでした。 広くなったLDKの壁(元は押入れと床の間でした)に小さな縦辷り出し窓を2箇所 キッチンに1箇所、新設しました。 ![]() 小さな窓ですが解放感が得られ、部屋が可愛らしい雰囲気になりました。 ![]() キッチンの吊戸棚は水切りタイプの電動昇降仕様。洗った食器類の置き場所として便利です。 リフォーム後と前を並べてみました。 ![]() リフォーム前です。 ![]() ![]() リフォーム前です。 ![]() テラスサッシは冷蔵庫で半分隠されていました。 ![]() リフォーム前です。 ![]() ![]() ![]() 壁の一部はエコカラット仕上げとしました。 ![]() リフォーム前です。 ![]() 和室とDKの壁を取り払い、広いLDKにしました。 リフォームプランです。 ![]() お客様、このたびは当店にリフォーム工事をご用命いただき、まことにありがとうございました。 |
〒235-0045
横浜市磯子区洋光台1-13-38
TEL.045-834-3030
FAX.045-834-3677
営業時間 9時〜18時
定休日 日・祭日
→アクセス

